装修设计大概多少钱一平方-一般设计一套100平的房子装修效果图要几天?

一般设计一套100平的房子装修效果图要几天?
前期量房需要一个小时,沟通方案需要一天,3D模型(主要是所有的家具摆放、地面材料规格、天花造型等等360度鸟瞰图)简单效果需要一天,成型效果图制作也需要一天,理论上正常按照我们的步骤,最快需要3天,实际上一般在一周左右。
当然,直接东拼西凑的所谓快手设计,估计半天吧。
个人意见,仅供参考。
使用面积50平米的老破小,如何装修设计成两室一厅?
在有限的面积内增加房间数,要多出一间房,首先我们应该思考的不是怎么规划,而是要明确多出的这一间房要做什么用,它的核心功能是什么,只有了解了这个,我们才能规划出适合自己的格局配置。
由于楼主没有提供详细的功能需求,小编在此就以一个三口之家(男女主人+一个5岁小孩)的为例来简单说明一下:
那对于三口之家原始结构存在以下缺陷:
(1)入户没有鞋柜位置
(2)洗手间空间紧凑
(3)主卧室空间过大,使用率低
结合三口之家的家庭结构以及原始结构,我做了简单优化方案,如下图:

方案解析:
(1)我们将原结构主卧室一分为二,规划了主卧室和儿童房,为了保证主卧室的收纳,我们主卧设计1.8米地台床头定制整体衣柜兼梳妆台。儿童房为了保证有自然采光,我们将隔断墙设计为钢化玻璃隔断,让公共区域的采光能二次进入儿童房。

(2)我们将原结构次卧室改造为客厅空间,从而保证了生活阳台能够位于公共空间,也保证了门厅的采光和通风顺畅

(3)厨房我们设计为开放式厨房+吧台,保证了一家三口的日常就餐,同时玄关与厨房采用错位手法设计嵌入式鞋柜,保证了日常的鞋柜衣物收纳;

(4)原结构洗手间空间紧凑,我们借用儿童房部分空间,设计了独立的淋浴房隔断,加长了洗手台台面,提升使用的舒适度。


好啦,以上是我的解答内容,希望能帮助到你,关注“装修充电站”,学习装修知识,体验最优的生活居住方式,追求属于自己的幸福小日子!
感谢邀请!
【韩胖说装修】倾心为您作答!
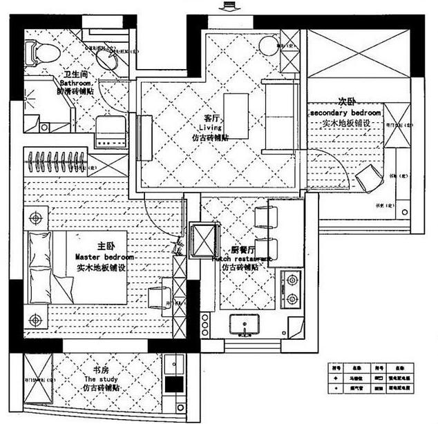
韩胖前几天刚好看到一个套内面积50平米左右的装修案例。原本是一室一厅的单身公寓,为了能够满足一家三口的住房需求,在客厅隔出了一个小卧室,这样一房变两房,效果还非常不多,下面就给大家展示一下。
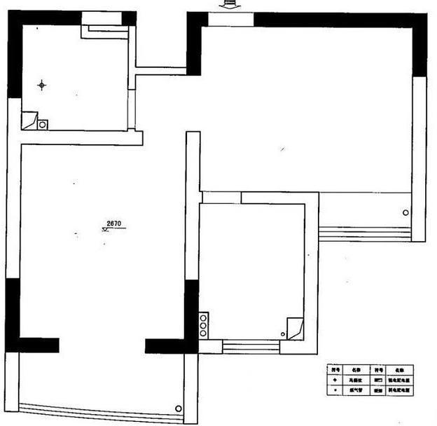
改造前的平面户型图

改造后的平面户型图。

进门的玄关柜,紧挨着客厅沙发。

客厅、餐厅、厨房,一条直线。

餐厅和厨房,厨房的窗户是主要光源。

电视墙

电视墙边上有个隐形门,进去就是厕所。

卫生间内部

电视墙和主卧的门。

主卧的收纳衣柜

大床

床尾的阶梯书柜

包进房间的小阳台,角落装成了书桌。

次卧的小书桌

一体式设计,紧挨着儿童床。

使用面积50平,其实也不算小,装修设计成两室还是很可能的。
下面的平面图我把室内的格局改了一下,划分成了6个区域。

1、玄关和厨房区域、我将一进门左手边做了个整体玄关柜,下面放鞋、上面挂衣服、中间可做镂空、也可做抽屉放一些东西。玄关柜后面是薄一点的橱柜、可以放一些豆浆机、电饭煲、微波炉、一些不是很大物品,这样也增加了厨房的储物空间。

2、卫生间原来的平开门改成了拉门,这样增加了卫生间的使用空间。
3、餐厅位置摆个1200x600mm的餐桌还是可以的,现在有很多伸缩餐桌,家里来客人吃饭可以把餐桌放大。背景墙可做一个酒柜放一些酒水、饰品和摆件。

4、小卧室西面和南面采用玻璃材质、这样增加了通透性、正午时分小卧室也可有些阳光。小卧室可以放一张1500mmx2000mm的床,也可做整体榻榻米,这样榻榻米下面可以储藏很多生活用品和衣物。将增加了储物空间。



觉得文章有用就打赏一下文章作者
支付宝扫一扫打赏

微信扫一扫打赏


还没有评论,来说两句吧...